
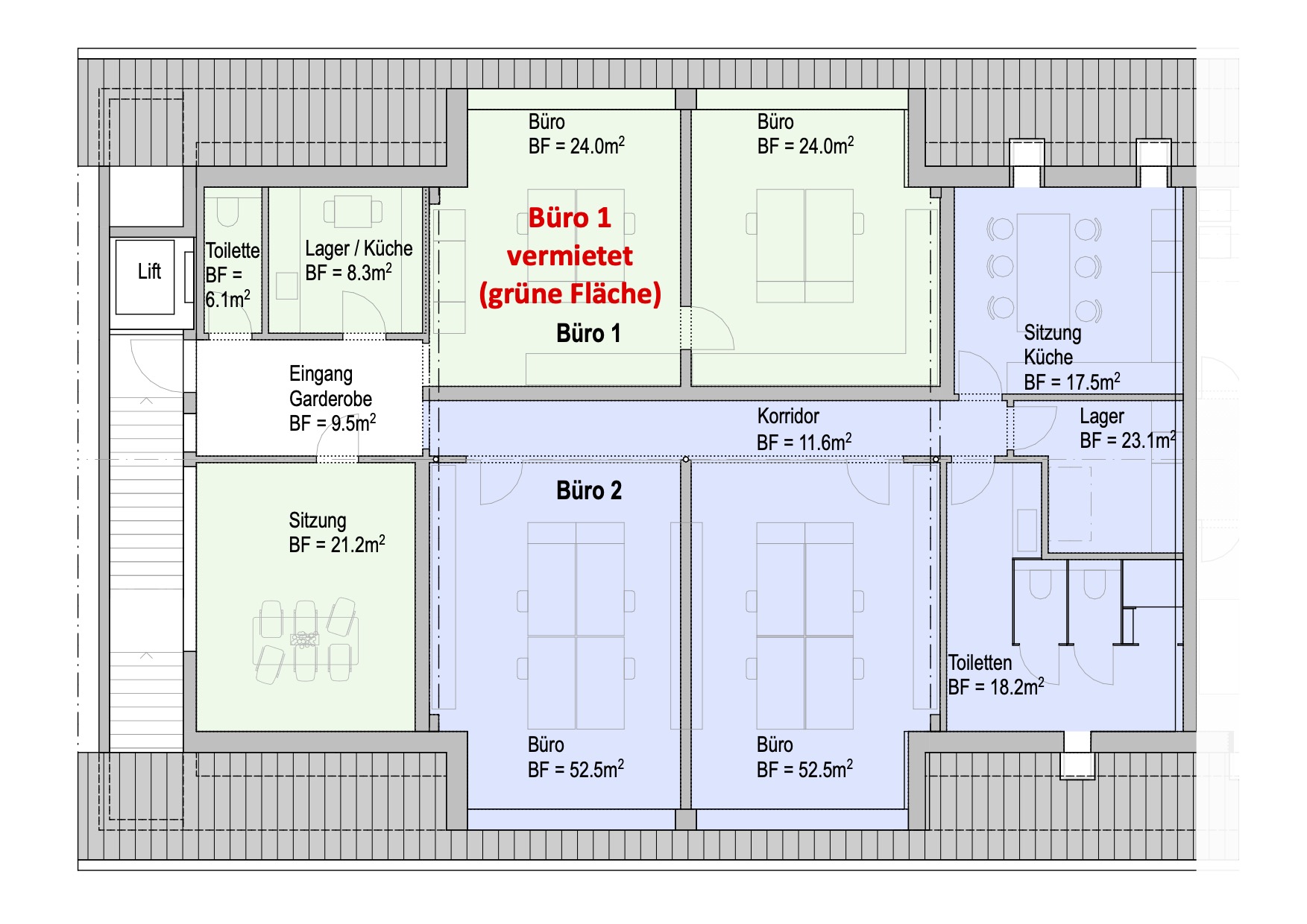
Das Büro verfügt über ein einmaliges Raumgefühl mit einer überhohen Dachschräge, die jeden Raum einzigartig prägt. Durch die grosszügigen Fenster werden die Räume mit viel Tageslicht ausgeläuchtet. Das Büro 2 setzt sich durch eine Küche, Nasszellen, einen Lagerraum und eine Fläche für 8 Arbeitsplätze zusammen. Es befinden sich genügend Elektroanschlüsse in den Räumen um diese flexibel zu nutzen. Das Bürogeschoss ist über den Lift sowie die Aussentreppe erschlossen. Im Aussenbereich befinden sich Besucherparkplätze die frei genutzt werden können.
Der Bau befindet sich im Rohbau und kann nach Wunsch besichtigt werden.